Egger Holzwerkstoffe Verwaltungsgebäude
Mint Architecture realisiert Arbeitswelt für Egger Unterradlberg
Nach der erfolgreichen Umsetzung im Tiroler Stammhaus wurde das neue Arbeitsplatzkonzept der Egger Holzwerkstoffe nun auch in Unterradlberg realisiert. Im umgebauten und modernisierten Verwaltungsgebäude hat das Innsbrucker Team von Mint Architecture das Konzept auf drei Stockwerke übertragen und eine Arbeitswelt geschaffen, die den Prinzipien von New Work gerecht wird.

Der Standort Unterradlberg bei St. Pölten in Niederösterreich ist eines der traditionsreichsten Werke der Egger Gruppe und zugleich eng mit der Unternehmensgeschichte verbunden. Bereits seit den 1970er-Jahren werden hier Spanplatten produziert, ein Kernprodukt der international tätigen Egger Gruppe. Heute ist Unterradlberg nicht nur ein bedeutender Produktionsstandort, sondern auch Verwaltungssitz für verschiedene zentrale Bereiche. Im Zuge einer umfassenden Modernisierung sollten die Fläche künftig effizienter genutzt werden können, das bestehende Gebäude auf den aktuellen Stand gebracht und ein zukunftsweisendes Arbeitsplatzkonzept mit Vorzeigecharakter innerhalb des Konzerns zu realisiert werden.
Workplace-Konzept: Flexibel und inspirierend
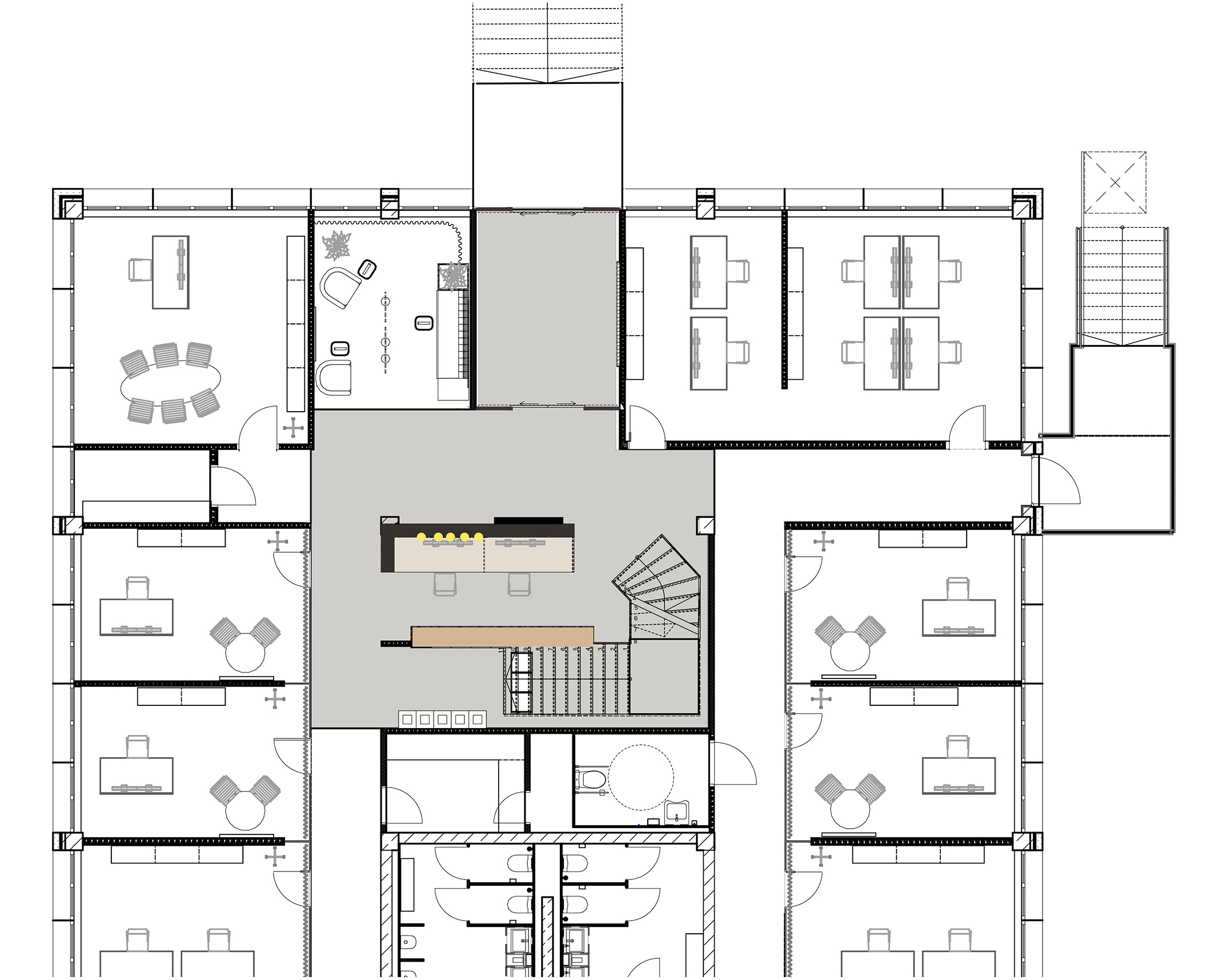
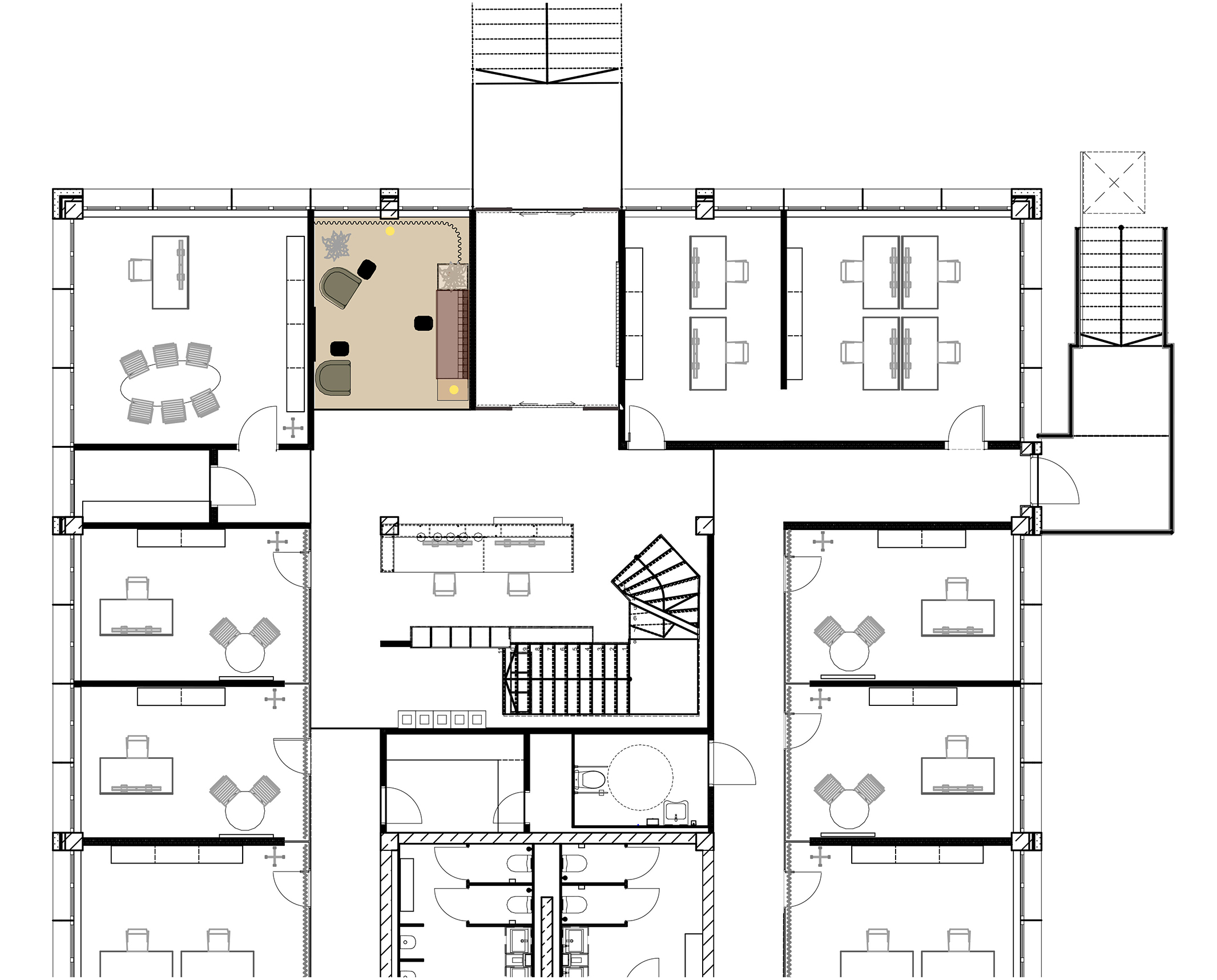
Auf rund 1.400 m² übersetzt Mint Architecture die im Stammhaus gewonnenen Erfahrungen in die zweite Umsetzung des New-Work-Konzepts im Verwaltungsgebäude Unterradlberg. Im Mittelpunkt stand die Schaffung einer flexiblen und inspirierende Arbeitsumgebung, die vielfältige Nutzungsformen ermöglicht und unterschiedlichen Bedürfnissen der Mitarbeitenden gerecht wird. Dafür gliedern die Architekten die neu gestalteten Bereiche in unterschiedliche Zonen und Arbeitsplatztypologien: Von personalisierten Einzel- und Geschäftsführungsbüros über offene, nicht personalisierte Arbeitsplätze bis hin zu Meetingräumen, Chat- und Hybrid-Boxen und Flex-Hybrid-Arbeitsplätzen sowie einer Teeküche und Bibliothek.




Innenarchitektur: Identitätsstiftenden Arbeitswelt mit eigenen Produkten
Der 70er-Jahre-Bestand in klarer Betonbauweise wird von Mint Architecture durch offene Raumstrukturen, warme Holzdekore, textile Elemente und runde Formen geöffnet und neu interpretiert. Die Innenarchitektur im Erdgeschoss sowie im ersten und zweiten Obergeschoss orientiert sich am New-Work-Prototyp aus St. Johann und basiert konsequent auf Egger-Produkten aus eigener Produktion. Vom Laminatboden über OSB-Zwischenwände bis zu Tischplatten und Möbeldekoren entsteht eine Arbeitswelt, die die Marke Egger im Raum sichtbar und erlebbar macht. Gleichzeitig wird die Identität des Unternehmens räumlich übersetzt: Die Werte von Egger spiegeln sich in der Materialwahl, der offenen Struktur und der Atmosphäre wider. Holz als zentraler Werkstoff steht dabei im Mittelpunkt und zeigt mit der gesamten Bandbreite der Egger Produkte die Vielseitigkeit und Innovationskraft des Unternehmens. Mit dem Umbau sollten zudem die Schall- und Akustiksituation verbessert und der Empfangsbereich repräsentativ gestaltet werden, um Besucherinnen und Besucher in der Welt von Egger willkommen zu heissen.
Umsetzung: Mit Respekt vor dem Bestand die die Zukunft gestaltet
Bei der Umsetzung legte Mint Architecture besonderen Wert auf den respektvollen Umgang mit dem Bestand. Die klaren Strukturen des Verwaltungsgebäudes blieben bewusst erhalten und wurden durch neue Gestaltungselemente ergänzt, die eine moderne Arbeitskultur fördern. In enger Zusammenarbeit mit Egger entwickelte und realisierte das Planungsteam eine Innenarchitektur, die sich harmonisch mit dem Bestand verbindet. Durch die konsequente Integration der Egger-Materialien, die Verbindung der bestehenden Architektur mit einer zeitgemässen Formensprache und die Übertragung des im Stammhaus St. Johann erprobten New-Work-Konzepts auf eine grössere Fläche entstand eine Arbeitswelt, die innerhalb des Konzerns als richtungsweisendes Beispiel gilt.
Auftraggeber
Fritz Egger GmbH & Co. OG
Standort
Unterradlberg bei St. Pölten, Niederösterreich
Fläche
1400 m² auf 3 Stockwerken
Expertise
Designkonzept, Innenarchitektur sowie Planung und Umbau aeiner modernen Arbeitsfläche über drei Geschosse im Verwaltungsgebäude 45 in Unterradlberg
Projektbeteiligte
Bauherrschaft: Fritz Egger GmbH & Co. OG
Workplacekonzept: M.O.O.CON
Innenarchitektur: Mint Architecture
Projekt- und Baumanagement: Fritz Egger GmbH & Co. OG
Innenausbauten: Tischlerei Walter GmbH
Elektro: Klenk & Meder GmbH
Haustechnik: PRO-PLAN GmbH



